
WICLINE 95 ispunjava visoke zahtjeve Passive House Instituta dr. Feista u Darmštatu, Njemačka, a zahvaljujući svom inteligentnom modularnom dizajnu nudi maksimalnu fleksibilnost.
Kod sistema WICLINE 95 termo-okvirni izolator nalazi se unutar prozora i može biti izveden kao kombinacija krila i rama, te jednostavno ugrađen pomoću pametne „clip-in“ tehnologije. Ovo omogućava promjenljivo podešavanje Uf vrijednosti prozora.
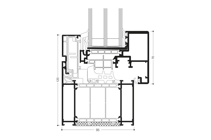
Visoko termoizolovan višekomorni sistem sa ETC Intelligence® zonom termo-prekida, sertifikovan za pasivne kuće u klasi efikasnosti phB.
Patentirana tehnologija ugaonih i čeonih spojeva koja obezbjeđuje visoku čvrstoću elemenata.
Debljina ispune do 55 mm.
Uf vrijednosti od 0.68 do 0.91 W/(m²K) za fiksne ostakljene elemente sa vanjskim vidljivim širinama od 65 do 180 mm.
Uf vrijednosti od 0.75 do 0.88 W/(m²K) za kombinacije krila i rama sa vanjskim vidljivim širinama od 105 do 260 mm.
Klasa energetske efikasnosti pasivne kuće phB, Uw i Uf = 0.80 W/(m²K) uz vidljive širine od samo 125 mm i dubinu ugradnje krila i rama od 95 mm.
Centralna zaptivka u tri varijante:
Kontinuirano postavljanje bez ugaonih elemenata
Sa formiranim uglovima, bez potrebe za ljepilom
Uglovno vulkanizirani ramovi
Skriveni okov
Opcije:
Vidljive šarke, plastificirane ili eloksirane u svim bojama
Skrivene šarke sa integrisanim prigušivačem krajnjeg položaja, maksimalni ugao otvaranja 105°
Težine krila:
Sa skrivenim šarkama: do 160 kg
Sa vidljivim šarkama: do 200 kg
Na zahtjev: do 300 kg
Dimenzije krila (š x v): do 1700 mm x 2500 mm,
Krovni prozori (skylights) do 2500 mm x 1700 mm.
Opcioni graničnik otvaranja.